Ice Arena Improvements
Overview
| Address | 60 Emerson Avenue |
|---|---|
| Current Project Phase | Various facility upgrades |
| Project Start | 2025 |
| Project End | 2026 |
Current Conditions
Project Summary
Improvements at the Ice Arena began in 2015, when the floor and refrigeration system was replaced. In 2022, the City entered into an agreement with the West St Paul Hockey Association and the Two Rivers Hockey Boosters, to build a new addition, almost entirely privately funded, by the 2 groups. This 8,600 sq ft addition added dedicated locker rooms for the boys and girls high school teams, a dryland training space and additional storage.
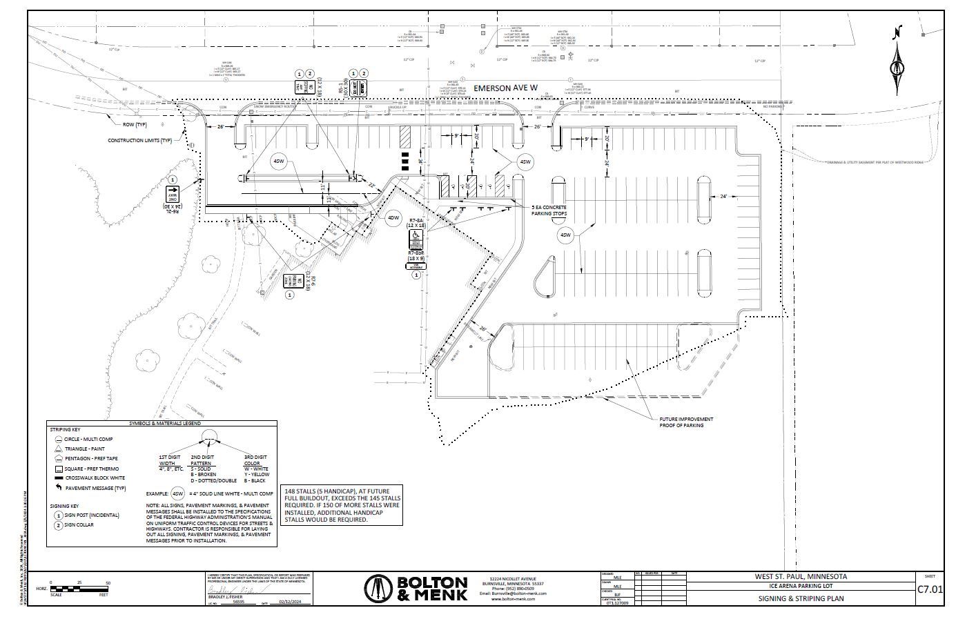
This past summer, 2024, the City completed a new parking lot renovation project. The project increases the available parking from 91 to 116 parking spaces, with an additional 32 stalls available to be added in the future, if needed. The project also greatly improved safety, by adding a dedicated drop-off lane, sidewalks around the building, and new lighting & security cameras. The project also added curb and gutter, on-site storm water treatment, and new trees & landscaping.
Improvements continue to take place with various facility upgrades planned for 2025 and 2026.
The parking lot expansion will take place to the east of the Ice Arena in slightly wooded area. The parking lot will expand from about 80 stalls to 116, with the possibility to easily add an additional 32 in the future. Medians will be added that will house trees and street lights. The project also includes an underground vault for treatment of stormwater. One of the main features being added is a dedicated drop-off lane, near the front entrance, to improve pedestrian safety. The parking lot will be closed during construction, but the Arena will remain open. The contractor will provide a safe route to walk to the entrance from Emerson Ave.
2015: Floor and refrigeration system replacement
2022: Updates to dryland, storage, and locker room
2024: New parking lot that created additional parking spaces, an additional drop off lane, sidewalks, new lighting & security cameras. The project also added curb and gutter, on-site storm water treatment, new trees, and landscaping
2025/2026: Various facility upgrades (currently in-progress)
- Infrared heating system upgrade (completed 2025)
- Roofing and siding (planned 2025)
- Compressor room upgrades (planned 2025)
- Door upgrades (planned 2025 and 2026)
- Dehumidifier (planned 2026)
City Cost: Approximately $945,000
Partners: None